Mit einem Neubau in der Alsterdorfer Straße zwischen Stadtpark und Flughafen schafft die BGFG erstklassig ausgestatteten und dennoch bezahlbaren Wohnraum für Familien mitten in der Metropole Hamburg.
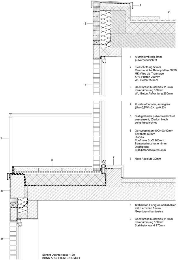
Um eine statisch knifflige Situation im Attikabereich zu lösen, entwickelte der Röben Planungsservice Ziegel-Fertigbauteile für diesen Bereich. Dabei wurden die Attika-Elemente auf einer Schalung vor der Filigrandecke positioniert.
Anschließend wurde die Decke vor Ort gegossen. Die im Fertigteil integrierten Iso-Schöck-Körbe stellen so eine kraftschlüssige, wärmegedämmte Verbindung mit der betonierten Gebäudedecke her.
Dort, wo unterhalb der Attika Fensterstürze und –Anschläge benötigt wurden, waren diese bereits Bestandteil der Fertigteile. In anderen Bereichen wurde das Fertigteil auf das Mauerwerk aufgelegt.
Der erforderliche Sichtbeton der Balkonbrüstungen hingegen konnte mit GEESTBRAND-Riemchen bekleidet werden. So ergibt sich ein komplett einheitliches Fassadenbild.




